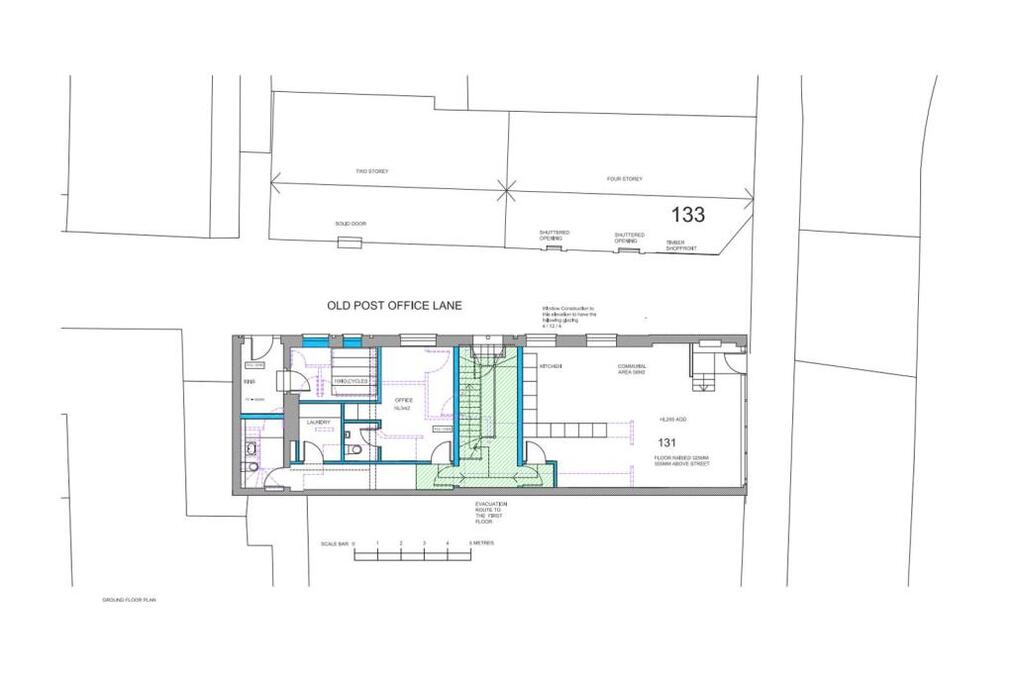
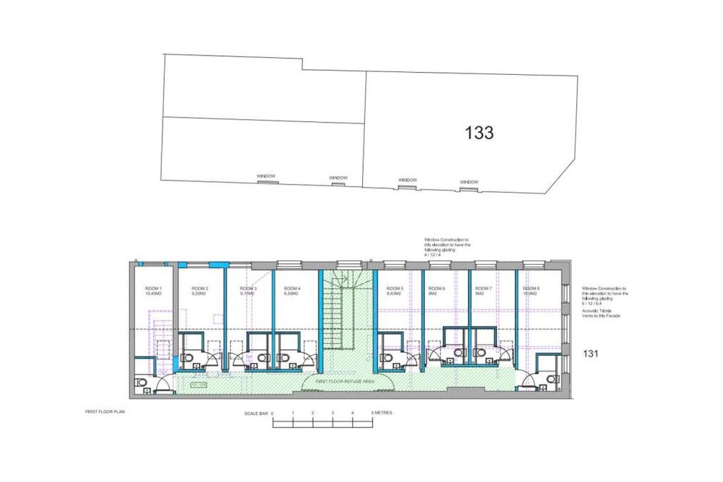
8 Bed Property For Sale

PLANNING | 8 BED HMO | 70K pa | WSM

BS23 1HN

£285,000

Added 10 Oct 2025

Property image
1 / 10

Property Details

Property Type

Property

Bedrooms

8

Location

BS23

Location

Map showing BS23 1HN

Nearby Properties

Disclaimer: Property descriptions, images, and related information displayed on this page are aggregated from publicly available sources across the web and presented for informational purposes only. While we strive for accuracy, home.co.uk cannot guarantee that all details are current or complete. This information is provided as a guide only and should not replace professional property advice. We strongly recommend contacting Hollis Morgan directly to verify availability, arrange viewings, and obtain comprehensive property documentation.

Listed by

Hollis Morgan

0117 463 0219

Get Move Ready

Fee-Free mortgage advice to help you secure your dream home

Compare rates from leading UK lenders

Expert guidance throughout the process

No obligation, completely free service

Fee-Free Mortgage Advice
Powered by homemove.com

Check broadband on this home

See the speeds and deals available for BS23 1HN