4 Bed Detached For Sale
Plot 19, The Pitlochry, Gleneagles Drive, Woodhall Spa
LN10 6PL
Added 09 Oct 2025
New Build 
        
        Property Details
Property Type
Detached
Bedrooms
4
Location
LN10
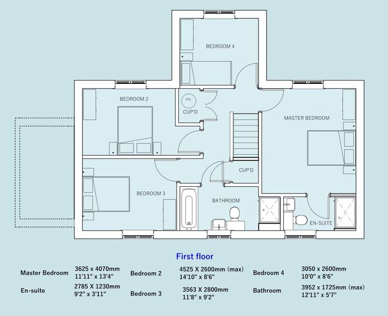
Description
Location
Nearby Properties
Disclaimer: Property descriptions, images, and related information displayed on this page are aggregated from publicly available sources across the web and presented for informational purposes only. While we strive for accuracy, home.co.uk cannot guarantee that all details are current or complete. This information is provided as a guide only and should not replace professional property advice. We strongly recommend contacting Robert Bell directly to verify availability, arrange viewings, and obtain comprehensive property documentation.
Listed by
Robert Bell
01522 538888
Quick Actions
Get Move Ready
Fee-Free mortgage advice to help you secure your dream home
Compare rates from leading UK lenders
Expert guidance throughout the process
No obligation, completely free service
Check broadband on this home
See the speeds and deals available for LN10 6PL
