3 Bed Semi-detached For Sale

Swallowfield Gardens, Theale, Reading, Berkshire, RG7

RG7 5AD

£395,000

Added 18 Oct 2025

Property image
1 / 10

Property Details

Property Type

Semi-detached

Bedrooms

3

Location

RG7

Description

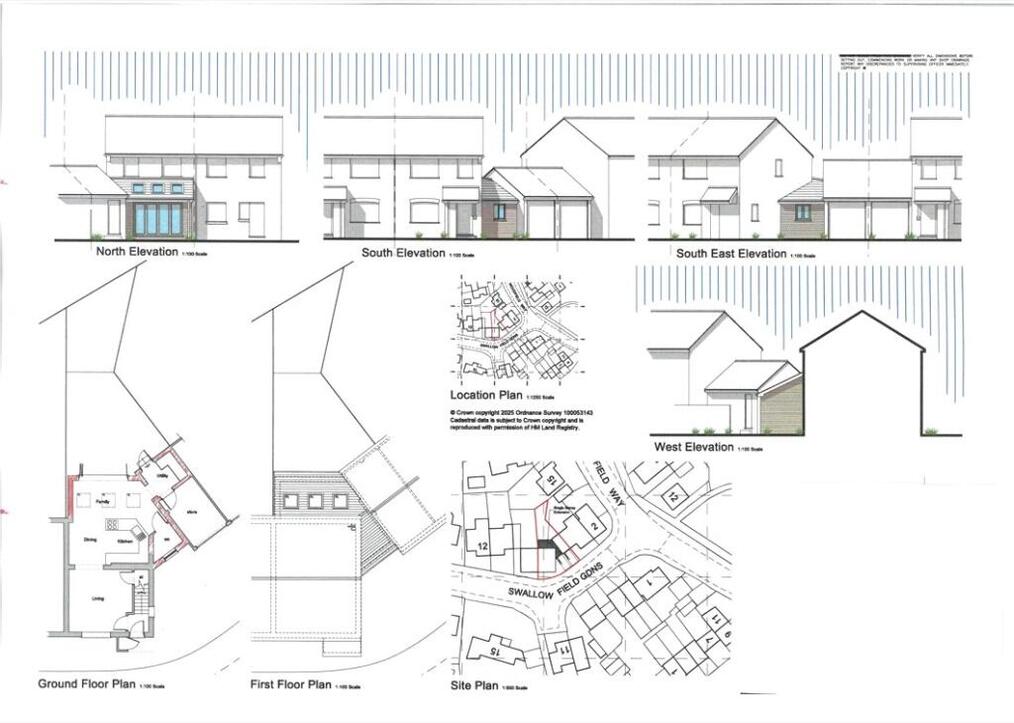
PARKERS Exciting opportunity to acquire a modern, three bedroom, semi-detached home, with planning permission, in the sought-after village of Theale.

Location

Map showing RG7 5AD

Nearby Properties

Disclaimer: Property descriptions, images, and related information displayed on this page are aggregated from publicly available sources across the web and presented for informational purposes only. While we strive for accuracy, home.co.uk cannot guarantee that all details are current or complete. This information is provided as a guide only and should not replace professional property advice. We strongly recommend contacting Parkers directly to verify availability, arrange viewings, and obtain comprehensive property documentation.

Listed by

Parkers

0118 230 3351

Get Move Ready

Fee-Free mortgage advice to help you secure your dream home

Compare rates from leading UK lenders

Expert guidance throughout the process

No obligation, completely free service

Fee-Free Mortgage Advice
Powered by homemove.com

Check broadband on this home

See the speeds and deals available for RG7 5AD